Create Your First Project
Start adding your projects to your portfolio. Click on "Manage Projects" to get started
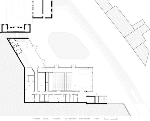
SOM_Centre culturel des falaises
Programme
Centre socio-culturel composé d'une salle de spectacle polyvalente (configuration à plat 300 personnes, ou 156 places assises avec gradin rétractable), de locaux associatifs, d'un hall d'exposition (éclairage scénographique), office traiteur (dimensionné pour 250 repas)
Lieu
Ault (80)
MO
Commune de Ault + Syndicat Mixte Baie de Somme - Grand Littoral Picard (SMBS-GLP)
Equipe
Bosco - K-Architectures - Batiserf - B52 - Vpeas - Altia - Changement à Vue - Stéphane Petit
Coût
1 950 000 €
Surface
850 m²
Statut
Livré
Environnemental
RT 2012 - 20% - HQE sans certification / construction mixte Bois-Béton / Isolants Biosourcés / Façade en ardoise naturelle (mise en valeur des savoir-faire locaux et artisanaux) / Salle modulable et polyvalente (résilience)
Type
Equipement socio-culturel - construction neuve - ERP Type L 3ème catégorie
Crédit
photos ©Guillaume Amat
Attaquées par la mer, battues par les vents, érodées par la pluie, les imposantes falaises sur lesquelles le village de Ault est installé, s’effondrent inexorablement. Face à la puissance des éléments et de la Nature, le génie humain ne sait rivaliser, ni protéger durablement sa côte d’Albâtre. Éreinté par ces années de résistance, le village opère à contre cœur un repli stratégique, délaissant le trait de côte pour les hauteurs du village. C’est un nouveau départ pour toute une population, qui voit dans ce pas en arrière, une manière d’aller de l’avant. Tel un « phare », culturel cette fois, le centre culturel est une incitation à migrer de de plus hautes terres. Il se veut être un lieu d’apaisement, de quiétude et de contemplation. Nous souhaitons qu’il réconcilie toute une population avec la Mer. Enchâssé dans la topographie du site, le projet développe un socle largement vitré vers le grand paysage, surmonté de 2 volumes monolithiques mimétiques de l’architecture locale. Par leur implantation, ces volumes opaques qui accueillent les fonctions du bâtiment (le pavillon d’accueil et la salle festive), cadrent le paysage côtier. Ils offrent sur le parcours du visiteur un belvédère sur l’enchevêtrement de toits anciens plongeant vers la mer et le Hâble d’Ault. Par-là, cet équipement culturel veut aller au-delà de sa fonction primaire de divertir ou de célébrer. Il veut sensibiliser en affichant aux yeux de tous un Territoire épatant de beauté à l’équilibre fragile et vulnérable, qu’il convient de chérir et de préserver. A la silhouette familière et rassurante, le centre culturel affiche sans complexes ses ambitions : tisser du lien, rassurer, accueillir en toute harmonie. Par son épiderme finement ciselé d’ardoises naturelles toutes taillées main, le bâtiment se veut complice du paysage qu’il habite. Résolument contemporain par une mise en œuvre radicale de la matière, s’effeuillant poétiquement par endroit pour répondre à la technique du bâtiment, le centre culturel élève au rang d’esthétique des savoir-faire artisanaux, le talents des artisans « du coin », et inscrit dans le temps les noblesses d’un matériau naturel. Cette quête de sobriété se retrouve également dans le traitement des ambiances intérieures, dans l’organisation des fonctions et ses équipements scénographiques. Le Centre Culturel des Falaises est pensé comme lieu humble, accessible au plus grand nombre, facile d’utilisation. Un lieu où se lient de premières amitiés, où se fabriquent des souvenirs inoubliables. Nous avons comme espoir de voir le centre culturel rendre tous les jours un peu plus soutenable cette fatilité « littorale ». Nous aimons penser qu’il offrira à cette station balnéaire aujourd’hui délaissé car scarifiée par les flots (Ault-Onival) toute l’attractivité et la jovialité qui étaient les siennes dans les années 80.





























































